248 Anderson DriveCrested Butte, CO 81224
Due to the health concerns created by Coronavirus we are offering personal 1-1 online video walkthough tours where possible.




Mortgage Calculator
Monthly Payment (Est.)
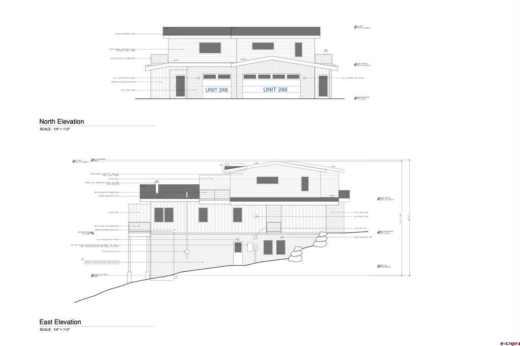
$6,980Alpenview at Crested Butte South – Brand New Alpine Modern Townhome. Introducing Alpenview, a stunning new pre-construction offering located in the peaceful upper area of Crested Butte South—where open meadows meet groves of aspens and the views are nothing short of breathtaking. This thoughtfully designed alpine modern townhome showcases panoramic vistas of Whetstone Mountain, Red Mountain, and the East River Valley, all from its sunny, south-facing position. 2,200+ sq ft of finely crafted living space with 2 bedrooms plus an office, 2.5 baths, and a 371 sq ft, heated, oversized single-car garage equipped with an EV charging station. Designed by a talented Colorado-based architect, designer, and builder, every element of this home is curated for modern mountain living—from high-end finishes to a functional and flexible floor plan that includes two bedrooms plus an office. Warm up in the great room by the EPA-compliant wood-burning stove and in-floor radiant heat, or step outside to enjoy the expansive main and upper-level decks that capture incredible southern views. A rooftop with room and hookups for a hot tub promises year-round relaxation under Colorado skies. Positioned in a quiet and desirable neighborhood, this home offers quick access to skiing, mountain biking, fishing, and more—a true gateway to adventure. With completion projected for Fall 2025, buyers who act early will have the exciting opportunity to personalize select finishes and appliances. Don’t miss this rare opportunity to own a standout home in one of Crested Butte’s most sought-after communities. Live the dream at Alpenview.
| 5 days ago | Listing updated with changes from the MLS® | |
| 6 months ago | Listing first seen on site |
The data relating to real estate for sale on this website comes in part from the Internet Data Exchange (IDX) program of Colorado Real Estate Network, Inc. (CREN), © Copyright 2025. All rights reserved. All data is deemed reliable but not guaranteed and should be independently verified. This database record is provided subject to “limited license” rights. Duplication or reproduction is prohibited.
FULL CREN Disclaimer - https://crenmls.com/full-cren-disclaimer-2/
Real Estate listings held by companies other than CREN contain that company’s name.
Fair Housing Disclaimer - https://crenmls.com/fair-housing-disclaimer/
Last checked: 2025-10-29 05:58 AM UTC
Did you know? You can invite friends and family to your search. They can join your search, rate and discuss listings with you.